Lease/Manage Storage and Shared Spaces Moranbah
The EOI has now closed.
THE OPPORTUNITY
Isaac Regional Council is seeking expressions of interest (EOI) for an Incorporated Association to lease a Storage Facility at Eastern Sporting Fields, for community recreational purposes.
THE LOCATION
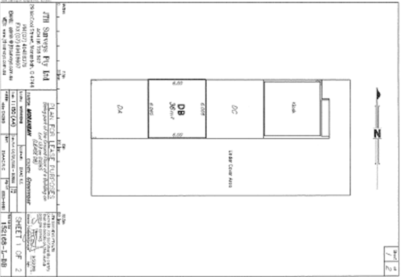
The facility is legally described as Lot DB on 152168-L being part of Lot 133 on GV265 and is approximately 36 square metres of storage under roof. The storage facility is located at the Eastern Sporting Fields with shared access to the Canteen and Toilets, for community recreational purposes. A two-door drinks fridge is available in the canteen for use by the successful respondent, with power to the fridge being invoiced by Council on receipt of an invoice from Ergon Energy.
MEMORANDUM OF UNDERSTANDING
The successful respondent will be required to enter into a Memorandum of Understanding with the existing two users of the facility. In accordance with the Memorandum of Understanding the Shared Spaces (common areas), including the kitchen/canteen, veranda/observation deck, toilets and building surrounds will be shared fairly, equitably and sustainably by all users. The other users of this facility are Moranbah X-Fit Incorporated and Moranbah Touch Football Association Incorporated.
The Parties to this MOU will commit to:
- Attending all scheduled Facilities Management Committee meetings
- Champion the partnership within and outside of work areas
- Share all communications and information
- Make timely decisions and take action
- Notifying members of the Facilities Management Committee, as soon as practical, if any matters arise
- Each member will be provided with complete, accurate and meaningful information in a timely manner
- Be given reasonable time to make key decisions
- Be alerted to potential risks and issues
- Open and honest discussions
- Being responsible for the testing and tagging of their equipment in the shared spaces in addition to their individual spaces
FACILITIES MANAGEMENT COMMITTEE
Each member organisation will, at their respective Annual General Meeting, appoint two (2) representatives to the Facilities Management Committee (FMC). Council will, when requested by the FMC, provide a representative, ex-officio. The FMC will be formed annually, on a mutually agreed date following the relevant member organisations Annual General Meetings.
The FMC will appoint (by unanimous decision) a secretary for the FMC to undertake Management Committee responsibilities under direction of the FMC within the scope of the FMC responsibilities. The Secretary of the FMC may be a member of any of the member organisations but will not be an Isaac Regional Council representative.
The Facilities Management Committee is accountable for:
- Fostering collaboration
- Maintaining always the focus of the partnership on the agreed scope, outcomes and benefits
- Communication relating to the premises, both with member organisations and Isaac Regional Council
- Ensuring all elements of the Leases are met, in particular where there are common responsibilities – payment of costs, Fire Safety, maintenance, etc.
LAND OWNERSHIP
The land is owned by Queensland State Government, represented by the Department of Resources; and managed by Isaac Regional Council as Trustee. The land has been dedicated as a Recreation Reserve by the Department of Resources.
The successful respondent will be responsible for the day-to-day running, operation, management and promotion of the facility and associated costs.
IMPORTANT
Information pertaining to this Expression of Interest is included in Important Information including the Terms and Conditions of the Lease and a sample of the Memorandum of Understanding. By submitting a response to the Expression of Interest you are agreeing to this information.
OPERATIONAL REQUIREMENTS AND CHARGES
Item | Requirement |
Term | By negotiation |
Facility hours of operation | In consultation with Council, it is the responsibility of the tenure holder to determine and regulate the facility hours of operation. |
Permitted use | As per Expression of Interest Guidelines |
Lease Fees | By negotiation |
Reasonable outgoings | All outgoings will be paid by the tenant on a shared basis. Rates, electricity, telephone/internet, water, cleaning, garbage/waste, etc. * Not for profit organisations are eligible to apply for a Rates Concession. |
Insurance | The tenure holder must hold Public Liability Insurance of $20M for the duration of the tenure and is responsible for contents insurance and a damage policy covering buildings and fixtures to full replacement value. |
Maintenance and fit out | At its own cost, the tenure holder must keep the facility clean and maintained in good and substantial repair and condition. Including but not limited to all amenities, gutter cleaning, smoke alarms, pest control, plumbing/electrical, floor surfaces, air conditioning servicing, carpark area, grounds, fixtures and fittings and fire services. Important: All electrical must meet current standards before the power is connected. |
Cleanliness | All areas of the facility must be cleaned regularly and rubbish removed weekly. |
INSPECTION
An inspection of the facility can be arranged by contacting Mitch Kinter, Overseer, via email on mitch.kinter@isaac.qld.gov.au.
EOI ASSESMENT CRITERIA
An assessment panel will be evaluating the submissions against the following key selection criteria:
- Operational and financial ability to construct, manage and operate the facility long-term (30%)
- Facility Management (30%)
- Meet regulatory framework and requirements (20%)
- Understanding of the local community (20%)
The Assessment Panel will not redress errors in applications. If an application is deemed ineligible, it may not be assessed.
Expressions of Interest are due by midnight on Monday, 16 March 2026 and can be completed online using the Respondent's Submission Document - Expression of Interest below, or by downloading the same document from the Important Information and submitting by email to cl.eoi@isaac.qld.gov.au.





